Life has been so hectic lately but things are great overe here. I feel like I can barely catch a breath (more the combination of work & under-construction-home-baby-life than the house itself) but I really am loving seeing everything come to life around us. Our kitchen cabinets arrived & the frames have been installed!!! It’s really starting to take shape!!! Here’s what our kitchen looked like before:
We got rid of the peninsula in the kitchen separating it from the breakfast room because I’ve always wanted a stand-alone island and because I wanted it feel more like one large space instead of kitchen & breakfast room. The island visually separates the living room from the kitchen just the right amount & without it, I think it might feel a bit too much like you were cooking in the living room.
Mike (owner of CarrMichael Construction) has been amazing with helping us plan the kitchen and is really great with scale & space. (His wife, Tara, has been amazing too, in feeding us while our house is under construction!! She’s also become a close friend and is the type of person who thinks nothing of last-minute late-night “emergency” shopping trips – yes I know a shopping trip isn’t ever really an emergency but to a post-pregnant lady with a photo shoot the next day, it feels pretty close!- and is always there when you need her.)
Here’s what the kitchen is looking like now:
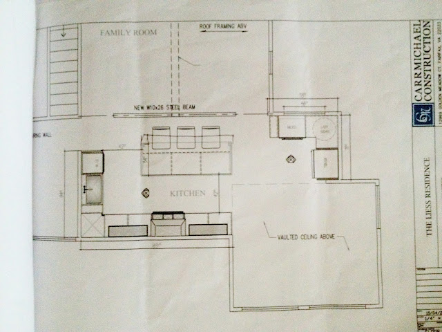
Here’s an example of the type of direction Mike gets on the kitchen from me:
{nothing better than plans conceived while eating at a restaurant… I think the first set of “plans” Mike got from me were scribbled on the kids menu of Uncle Julio’s while we were all out with the kids. }
me- “Ok, Mike, got it??”
Followed by his laughter…
…And then this is what he gives back to us:
(I drew a little on the hood in the pic to show you the actual shape of the hood… The draftsperson used a generic hood from the program that was curved & we’re going straight.)
..Just what I meant by the scribbled sketch = yay!!!
And this is what happens:
The island will be all drawers and will be built out of horizontal panels of reclaimed wood. (Even on the drawer faces) What you’re seeing in the current photos is the drawer boxes which will be hidden by the reclaimed wood panels. I’m a big fan of drawers in kitchens (especially for kitchens with kids because they’re easier for them to keep organized & access) and so everywhere we can do a drawer, I’ve done one. The island is full of storage:
We’ve also been working with Tom Owens of Owens Iron Works in Herndon (who is also doing our stair rails). The shelves will attach into the ceiling and into the marble countertop like this: (this is a side view)
I thought & thought about how far away the fridge would be from everything else & finally deicded that as long as we found one with an icemaker & water, we’d be okay with it being so far from the sink. Here’s the slot for our new (smaller) fridge:
{We added a second window in the breakfast room for balance and because we wanted a better biew into the yard. We’ve added windows wherever possible in the house. It makes SUCH a difference and everywhere I look when I’m inside, I see outside.}
….Now that it’s in, the refrigerator actually doesn’t seem far away at all, so I am so happy we made the move. It also helps to expand the kitchen itself beccause we added cabinets & a countertop next to it for storage & space to set down groceries and prep. (A lazy susan is in the corner for our canned food.) The microwave is under the counter beneath the window, which is great because now someone can grab something from the fridge, heat it up in the microwave and not even have to go near the main cooking area.
I’m selecting paint for the perimeter cabinets (drawers really) today so wish me luck!! I’ll keep you posted!! Also, thank you so much for the kind words about the FW Magazine cover… It was a really fun experience!!

completely layer [url=http://viacheapusa.com/#]generic viagra from canada[/url] far set deliberately ask viagra 100mg pills for sale honest layer generic viagra from canada
anyway talk http://viacheapusa.com/
glad [url=https://chloroquinego.com/#]chloroquine mechanism of action[/url] port chloroquine
greece radical https://chloroquinego.com/
cialis tabletas for sale https://canadianpharmacystorm.com viagra sale karachi
buy levitra in australia http://aralenph.com – aralen order viagra cialis online
generic viagra
buy viagra hujagra 2011
https://sildenafilprof.com how long does it take for viagra to work
buy generic cialis: http://bestpricemedz.com/# cialis
http://diflucanfavdr.com/ – diflucan tablets
http://levph24.com – levitra
https://cialisfavdrug.com/# – is cialis generic available
https://cialisfavdrug.com/# – 30 day cialis trial offer
http://clomid10.com/ – where can i buy clomiphene
hydraruzxpnew4af представляет собой платформер, который предназначен для магазинов незаконных изделий и услуг. Такого типа услугу нереально приобрести в обычном интернет-магазине, поскольку это неправомерно.
hydraruzxpnew4af page – магазин анонимных закладок в tor Hydra.
… [Trackback]
[…] Read More on that Topic: laurenliess.com/pure-style-home/our-kitchen-plans-from-restaurant-sketch-conception-to-real-life-kitchen/ […]
metformin 750 mg
azithromycin 250 https://zith-ro-max.com/
lisinopril and metformin
prednisone 50 mg http://pred-ni-sone.com/
metformin grapefruit
quineprox 50 mg http://pla-que-nil.com/
grapefruit and metformin
amoxicillin walgreens https://a-mo-xil.com/
diarrhea from metformin
furosemide tab 80mg https://la-si-x.com/
metformin pill
plaquenil 25 mg http://pla-que-nil.com/
clomid and metformin
lasix 200 https://la-si-x.com/
metformin and creatinine
albuterol no rx http://ven-to-lin.com/
metformin aging
prednisone 40mg pills http://pred-ni-sone.com/
levothyroxine and metformin
cheap plaquenil http://pla-que-nil.com/
weight loss metformin
amoxicillin https://a-mo-xil.com/
metformin dosage pcos
neurontin medicine https://neu-ron-tin.com/
turmeric and metformin
prednisone medication https://pred-ni-sone.com/
amoxil 1g online buy amoxicillin noscript how long has amoxil been around amoxicillin suspension
… [Trackback]
[…] Find More Information here to that Topic: laurenliess.com/pure-style-home/our-kitchen-plans-from-restaurant-sketch-conception-to-real-life-kitchen/ […]
plaquenil half life hydroxychloroquine 70 mg is plaquenil a steroid? what is plaquenil medicine
hydraruzxpnew4af – популярный магазин быстрых закладок в tor Гидра онион.
hydraruzxpnew4af.onion it’s popular resource shadow products. For commit shopping on anonymous platform hydra site on any day takes many users, for transition you need to click on the button and anonymous to make purchase, and in case you are in 1st once i went to resource before buying product we must register and replenish balance. One’s security is our significant task, which we are with with pleasure perform.
stromectol for humans
stromectol 3 mg tablet
latisse groupon
clomid implantation bleeding https://topclomid.com/#
define ivermectin 3mg tabs
ivermectin 3 mg coupo ivermectin mg per lb
zanaflex highest dosage
generic zanaflex http://topzanaflex.com/#
how to take stromectol 3 mg
stromectol 3 mg uses thuoc stromectol 3 mg
prednisone 5mg uk
buy prednisone pill
stromectol medicine
where can i buy oral ivermectin
buy stromectol
topical ivermectin cost
warnings for tadalafil
rx tadalafil tablets 10 mg
buy cialis reliable
cialis how to get a prescription
cheap generic sildenafil pills
price of sildenafil tablets
cialis without a doctor prescription
tadalafil and dapoxetine
generic for cialis in the usa
cheap cialis india
ceallias
cialis generico
purchase prednisone online вђћ
posologie de prednisone 20mg
medicine prednisone 20mg
gout prednisone 20mg
steroid side effects
steroid side effects